Takarazuka House

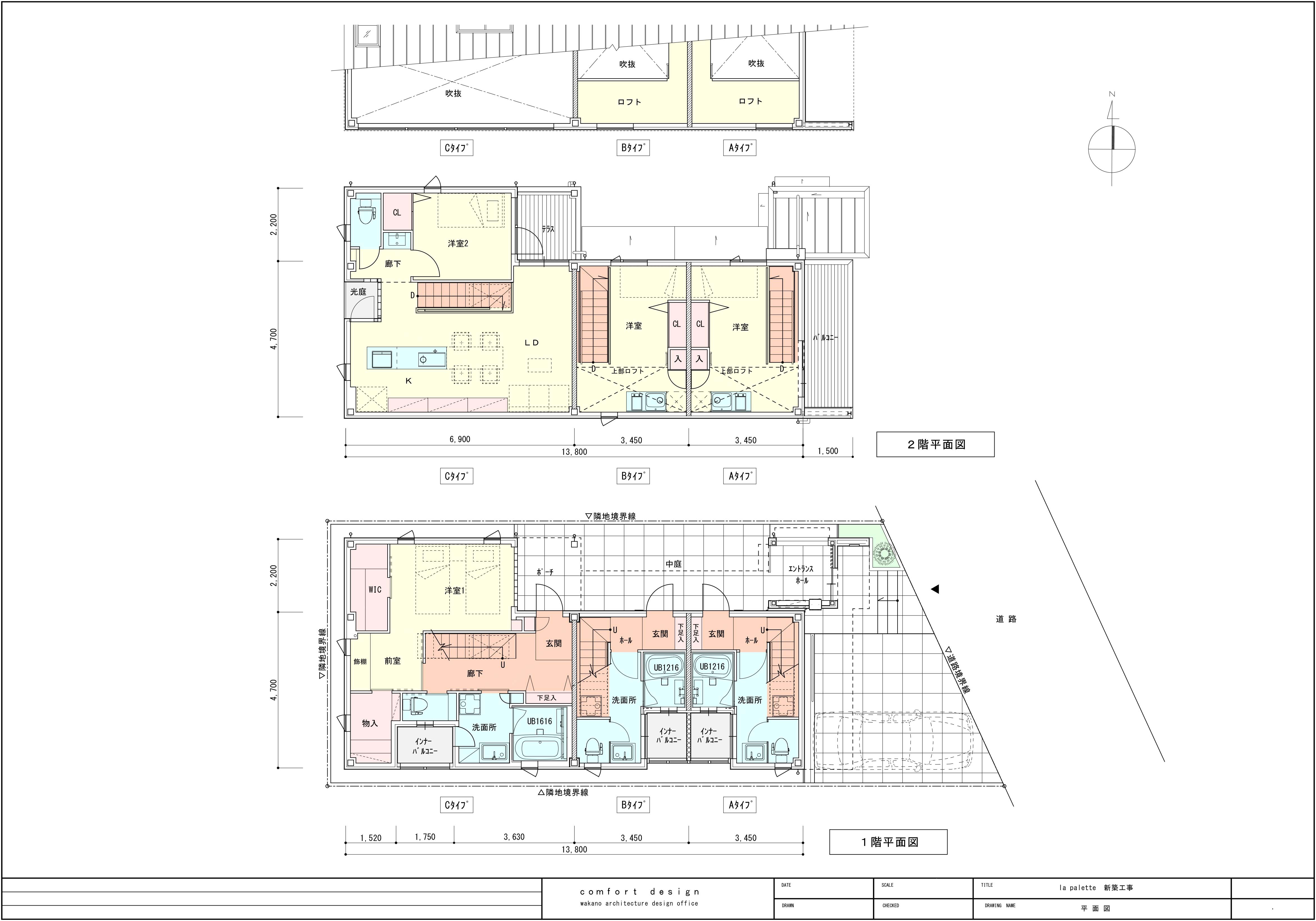
la palette

賃貸併用住宅

大阪大学の敷地に隣接した、閑静な住宅街にある、賃貸併用住宅です。
中庭を通り各住戸に入ります。

集合住宅でありながら、戸建ての雰囲気を大切に設計した建物です。
各住戸はメゾネット仕様になっており、賃貸部はロフトを設け開放感
ある部屋としました。

023.jpg023.jpg

.外観
.外観
.中庭
.中庭
007.JPGエントランス
010.jpgリビング
011.jpgリビング
013.jpgリビング
014.jpg洋室
015.jpg主寝室
018.jpg賃貸スペ-ス
020.JPG賃貸スペ-ス